ID CP2885897

Garsoniera la parter inalt in BL.Nou str.Ostroveni

ID CP2885897

60,700 € TVA inclus

Apartament cu 1 camere de vânzare
Agrement Ostroveni, Ramnicu Valcea
36 mp
2026

Prezentam garsoniera confort 1 intr-un bloc nou pe str. Ostroveni , Rm.VL.

Arie construita cca. 44mp , arie utila cca.36mp.

Model 03 in Bloc 1 , amplasata la un parter inalt .

Imobilul se preda finisat la cheie si devine locuibil la finalul anului 2026.

Pret 60.700mii €uro (tva inclus).

Loc parcare tip garaj la subteran-contracost 10 mii€ (tva inclus).

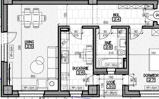
Compartimentare:

- living 22.36mp cu suprafate vitrate mari;

- bucatarie 6.02mp cu suprafate vitrate mari;

- baie 5.16mp prevazuta cu fereastra si sanitare suspendate ;

- hol 2.28mp.

Cladire moderna cu 3 etaje +acoperis, construita pe cadre cu zidarie phorotherm de 30cm si izolatie exterioara de 10cm .

Constructia cu regim de inaltime D+P+3 , este prevazuta cu parcari private, bariere cu telecomanda, curte proprie si spatii verzi.

Amenajari si finisaje incluse:

- centrala proprie;

- ferestre mari cu termopane de calitate;

- gresie ,faianta,parchet- provenienta Italia;

- aparataj electric modular (tablou electric, prize,intrerupatoare);

- corpuri sanitare complete;

- usa metalica la exterior si usi mdf la interior.

Finisajele interioare sunt diversificate si se pot alege din depozitul dezvoltatorului.

Se accepta si avans cu precontract notarial si rate esalonate pana la intabularea imobilului.

Reprezentant direct dezvoltator 0% comision cumparator !

Oferim facilitati pt. obtinerea de credite ipotecare in conditii avantajoase , rapiditate si eficienta in privinta documentelor notariale.

Pentru detalii si programare vizionari apelati cu incredere la reprezentantul nostru Camil Florescu

0766 799 140

Citește mai mult

  • Tip apartament
    Garsonieră
  • Compartimentare
    Decomandat
  • Număr camere
    1
  • Dormitoare
    1
  • Număr bucătării
    1
  • Număr băi
    1
  • Geam la baie
    Da
  • Etaj
    Parter
  • Suprafață utilă
    36 mp
  • Suprafață construită
    44.18 mp
  • Disponibilitate
    1an
  • Orientare
    Sud-Est
  • Confort
    1
  • Stare interior
    Finisat modern
  • Anul finisării
    2026
  • Imobil
    Bloc de apart.
  • Stadiu construcție
    Semifinisat
  • An construcție
    2026
  • Construcție nouă
    Da
  • De la dezvoltator
    Da
  • Tip construcție
    Cărămidă
  • Număr etaje clădire
    3
  • Număr etaje retrase
    3
  • Număr subsoluri
    1
  • Are demisol
    Da
  • Cadastru
    În Lucru
  • Intabulare
    În Lucru
  • Mod de dobândire
    Contract
  • Clasă Energetică
    B

Facilități

Acces pentru persoane cu dizabilități
Acoperiș
Apă
Apometre
Bucătărie închisă
Cabină de duș
Canalizare
CATV
Centrală proprie
Contor căldură
Contor electric
Contor gaz
Curent
Curte comună
Faianță
Ferestre care se deschid
Gaz
Geamuri cu izolație fonică
Geamuri termopan
Glet
Gresie
Iluminat stradal
Interfon
Internet
Izolație exterioară
Loc de joacă copii
Mijloace de transport în comun
Nemobilat
Parcare acoperită
Parcare biciclete
Parcare deschisă
Parchet laminat
Șapă
Spații agrement
Străzi asfaltate
Supraveghere video
Telecomandă poartă acces auto
Telefon
Telefon internațional
Ușă intrare metal
Uși interior MDF
Vedere panoramică
Vedere spre oraș
Vopsea lavabilă
Wireless
Florescu Camil Marian - Camil Florescu - Broker Imobiliar & Broker Credite
Florescu Camil Marian
Manager

0766799140


Solicită chiar acum o vizionare
Nume
Telefon
Email
Sună acum Solicită vizionare
Necesare:

Site-ul nu poate funcționa corect fără aceste cookie-uri. Vezi cookie-urile

Statistică:

Strângem statistici anonime despre voi, vizitatorii unici, pentru a vă îmbunătăți experiența dumneavoastră. Vezi cookie-urile

Marketing:

Pentru a ne promova mai eficient serviciile noastre, folosim cookies pentru a vă identifica și a vă oferi proprietăți și servicii personalizate. Vezi cookie-urile

Acest site folosește cookies, află detalii. Alege ce tipuri de cookies dorești să permitem: